Quadrilocale in vendita

Montecchio Emilia, via Garibaldi
€ 145.000
4 locali 4 locali
107 Mq 107 Mq

Quadrilocale in vendita

Montecchio Emilia, via Garibaldi

Descrizione annuncio

°MONTECCHIO EMILIA°

In pieno centro, proprio all’ingresso della piazza principale, proponiamo immobile di pregio al primo piano di un palazzo storico. Il contesto è di sole due unità, garantendo massima indipendenza e totale assenza di spese condominiali.

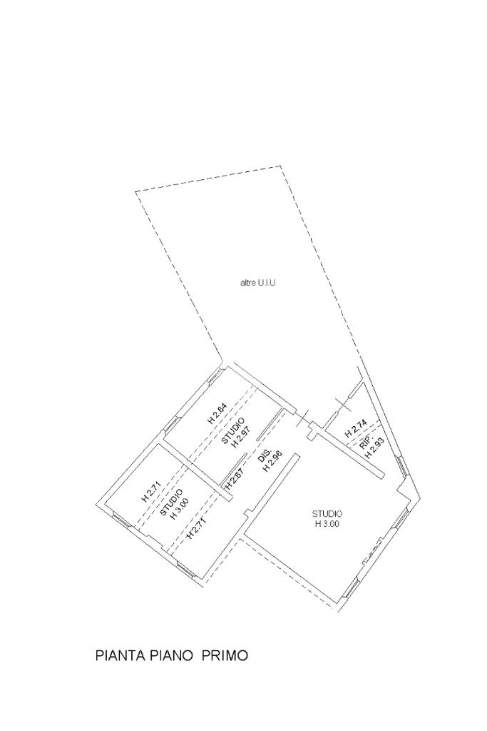
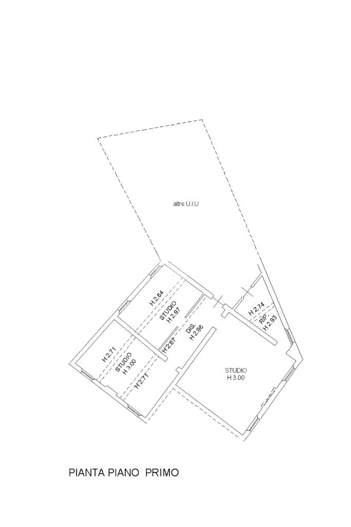
COMPOSIZIONE: L’immobile, attualmente accatastato come ufficio, è composto da tre ampie stanze e un vano ripostiglio. Il valore aggiunto sono i bellissimi affreschi originali che decorano i soffitti, rendendo gli ambienti unici.

POTENZIALITÀ E STATO: La proprietà necessita di lavori di ristrutturazione e, grazie alla disposizione degli spazi, si presta perfettamente al cambio di destinazione d'uso per diventare un appartamento residenziale. È la soluzione ideale per chi desidera ricavare un'abitazione d'epoca signorile e introvabile, personalizzandola totalmente.

Ottima opportunità anche come studio professionale di alta rappresentanza o come investimento nel cuore del paese.

Per informazioni e concordare le visite, contatta ALEX al 340.2135915 (anche tramite messaggio Whatsapp).

Se devi vendere l'immobile dove vivi ora per poter poter ricomprare questa soluzione, non ti preoccupare! Gestiamo noi tutte le fasi di vendita e acquisto!

Devi fare mutuo e vuoi avere un parere di fattibilità o capire il budget massimo di spesa? Presso la nostra agenzia è possibile, grazie alla consulenza del credito Kiron (Gruppo Tecnocasa Holding SPA) accedere a servizi e prodotti come:
- Mutui prima o seconda casa,
- Mutui ristrutturazione,
- Leasing immobiliare,
- Sostituzione del mutuo attuale. Fissa la consulenza direttamente in agenzia Tecnocasa. E' gratuita!

Mostra tutto

Nelle vicinanze

Trasporto pubblico Trasporto pubblico
Trasporto pubblico
110 m
Fermata Ospedale
Fermata Ospedale
540 m
Scuole Scuole
Armando Giuffredi
100 m
Scuola Media "Jacopo Zannoni"
390 m
Scuole
410 m
Edmondo de Amicis
480 m
gym
480 m
Farmacia Farmacia
Farmacia San Simone
160 m
Farmacia Barbieri
230 m
Ospedali Ospedali
Ospedale Ercole Franchini
660 m
Supermercati Supermercati
Supermercati
500 m
SIGMA
500 m
COOP Montecchio Emilia
1,2 Km
ECU
1,8 Km
Negozi Negozi
Negozi
20 m
Bar Bar
Bar
60 m
Amici del Parco
590 m
Maya Caffè
950 m
Ristoranti Ristoranti
Sedicipiadina
1,2 Km
Ristoranti
1,5 Km
La Fratta
1,8 Km
Pizzeria Da Gaetano
1,9 Km
Il Baccanale Osteria Pizzeria
2,0 Km
Mostra tutto

Caratteristiche

Rif.:
61172271
Piano:
1 di 3 (Piano basso)
Arredamento:
Assente
Condizionamento:
Assente
Ascensore:
No
Riscaldamento:
Autonomo
Mostra tutto
Prezzo Prezzo
€ 145.000
Rata mutuo Rata mutuo
€ 692 / mese
Spese annue Spese annue
€ 0
Proponi il tuo prezzoProponi il tuo prezzo

Classe Energetica

F
F
F
F
F
F
F
F
F
EP globale non rinnovabile:
276.82 kW h/m² anno
EP globale rinnovabile:
276.82 kW h/m² anno
EP invernale del fabbricato:
EP estiva del fabbricato:
Anno di costruzione:
1700
Riscaldamento:
Autonomo
Tipo impianto:
A radiatori
Tipo alimentazione:
Metano

Ti interessa visionare l'immobile?

Fissa un appuntamento  Fissa un appuntamento

Richiedi informazioni

Clicca su Leggi per aprire l'informativa
* Questi campi sono obbligatori

Calcola il tuo mutuo

Semplice e senza impegno
Anticipo

( % )
Mutuo

( % )

pochi semplici passi

inserisci i tuoi dati
Questionario completato
Grazie per aver richiesto un appuntamento senza impegno con un nostro Consulente del Credito e Assicurativo.

Hai inserito correttamente tutti i dati necessari e a breve riceverai una e-mail con un link da convalidare per inviare i tuoi dati.
Affiliato
Studio Alfa Srl
Via Iones del Rio, 3 42027 Montecchio Emilia (RE)

Il nostro staff


  • Antonio Iosso
    Affiliato

  • Federico Laudicina
    Responsabile

  • Evghenii Cristman
    Collaboratore

  • Alex Senatore
    Collaboratore

  • Federica Spaggiari
    Collaboratrice

  • Martina Tagliavini
    Collaboratrice
Via Iones del Rio, 3 42027 Montecchio Emilia (RE)
Zona: Montecchio-Villa Aiola–Bibbiano–Barco–San Polo d'Enza
Mostra su mappa
Orari: da lunedì a venerdì 9-13/15-20; sabato 9-13/15-18
Affiliato
Studio Alfa Srl
Via Iones del Rio, 3 42027 Montecchio Emilia (RE)

2026 Tecnocasa Franchising S.p.A. - P. IVA 08365160152 - Via Monte Bianco 60/A 20089 Rozzano (MI). Ogni agenzia ha un proprio titolare ed è autonoma. Privacy policy | Policy utilizzo | Cookie policy